
|
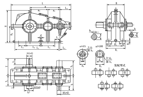
中心高
|
B1
|
B2
|
L1
|
L2
|
L3
|
H1
|
|||||||||||||||
|
a
|
a1
|
a2
|
H0
|
H
|
L
|
B
|
d
|
n
|
B3
|
L4
|
L5
|
L6
|
L7
|
||||||||
|
ZL
ZLH
ZLSH
|
25
|
250
|
100
|
150
|
200-0.5
|
398
|
560
|
256
|
256
|
70
|
435
|
-35
|
120
|
20
|
M20
|
6
|
210
|
-5
|
175
|
205
|
─
|
|
35
|
350
|
150
|
200
|
250-0.5
|
493
|
720
|
316
|
316
|
80
|
585
|
-40
|
135
|
20
|
260
|
0
|
255
|
255
|
─
|
|||
|
42.5
|
425
|
175
|
250
|
300-0.5
|
588
|
860
|
346
|
346
|
80
|
705
|
-39
|
149
|
25
|
280
|
10
|
275
|
335
|
─
|
|||
|
50
|
500
|
200
|
300
|
350-0.5
|
688
|
1035
|
400
|
400
|
90
|
850
|
-58
|
185
|
30
|
M24
|
8
|
330
|
30
|
290
|
275
|
150
|
|
|
60
|
600
|
250
|
350
|
400-0.5
|
821
|
1185
|
460
|
460
|
100
|
945
|
-8
|
190
|
35
|
390
|
30
|
370
|
310
|
180
|
|||
|
65
|
650
|
250
|
400
|
450-0.5
|
916
|
1300
|
500
|
500
|
110
|
1025
|
8
|
205
|
38
|
M30
|
420
|
55
|
395
|
325
|
200
|
||
|
75
|
750
|
300
|
450
|
500-0.5
|
1016
|
1460
|
570
|
570
|
120
|
1200
|
-18
|
214
|
40
|
480
|
25
|
485
|
370
|
240
|
|||
|
85
|
850
|
350
|
500
|
550-0.5
|
1116
|
1655
|
620
|
620
|
130
|
1320
|
12
|
251
|
45
|
M36
|
530
|
65
|
505
|
445
|
250
|
||
|
100
|
1000
|
400
|
600
|
650-0.5
|
1306
|
1910
|
710
|
710
|
145
|
1550
|
22
|
265
|
50
|
610
|
75
|
595
|
510
|
320
|
|||
|
115
|
1150
|
450
|
700
|
750-1.0
|
1496
|
2190
|
785
|
785
|
145
|
1770
|
42
|
295
|
55
|
M42
|
700
|
105
|
655
|
595
|
380
|
||
|
130
|
1300
|
500
|
800
|
850-1.0
|
1691
|
2460
|
845
|
845
|
150
|
2015
|
42
|
317
|
60
|
740
|
105
|
745
|
670
|
450
|
|||
|
S
|
S1
|
低速軸
|
T
|
大重量/kg
|
|||||||||||||||
|
I
|
D
|
d
|
t
|
I1
|
D1
|
b1
|
t1
|
T1
|
D2
|
d4
|
d8
|
d9
|
h2
|
||||||
|
ZL
ZLH
ZLSH
|
25
|
55
|
25
|
8
|
27.5
|
235
|
245
|
70
|
40
|
12
|
42.8
|
250
|
160
|
25
|
45
|
35
|
M6
M8
|
15
20
|
135
|
|
35
|
55
|
30
|
8
|
32.5
|
265
|
275
|
85
|
55
|
16
|
58.5
|
305
|
190
|
60
|
40
|
230
|
||||
|
42.5
|
55
|
35
|
10
|
37.8
|
280
|
290
|
105
|
70
|
20
|
74.2
|
355
|
210
|
75
|
305
|
|||||
|
50
|
70
|
45
|
14
|
48.2
|
325
|
340
|
115
|
85
|
24
|
90.0
|
390
|
235
|
75
|
95
|
55
|
490
|
|||
|
60
|
85
|
50
|
16
|
53.5
|
375
|
386
|
140
|
100
|
28
|
105.7
|
450
|
270
|
110
|
725
|
|||||
|
65
|
85
|
50
|
16
|
53.5
|
395
|
406
|
140
|
110
|
32
|
116.5
|
470
|
290
|
120
|
980
|
|||||
|
75
|
105
|
60
|
18
|
63.9
|
450
|
463
|
165
|
130
|
36
|
137.2
|
540
|
325
|
140
|
1390
|
|||||
|
85
|
105
|
70
|
20
|
74.2
|
490
|
500
|
180
|
140
|
36
|
147.2
|
580
|
350
|
150
|
1910
|
|||||
|
100
|
125
|
80
|
24
|
85
|
560
|
567
|
200
|
170
|
40
|
178.5
|
655
|
395
|
180
|
2730
|
|||||
|
115
|
140
|
90
|
24
|
95
|
610
|
620
|
240
|
200
|
45
|
209.7
|
735
|
435
|
220
|
4000
|
|||||
|
130
|
160
|
100
|
28
|
105.7
|
660
|
670
|
280
|
220
|
50
|
231.0
|
805
|
465
|
240
|
5430
|
|||||